
ロッテルダムに拠点を置く建築事務所、Pasel Kuenzel Architects がオランダのライデンにおける MVRDV のマスタープランに従ってもう1軒の住宅を完成させた。

「V35K18」というこの住宅は入り口に当たるガラス張りの細い空間によって後ろに建つ住宅から切り離されている。

ガラス面は建物全体の高さのある廊下を覆い、2棟の住宅に挟まれている。

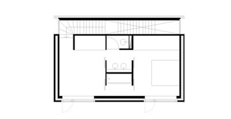
長い階段は地上1階の玄関から3階へとまっすぐに続き、踊り場は途中2階の高さに設けられている。

作業空間は1階、リビングスペースは2階、寝室は3階に配置されている。

担当建築事務所は以前産業用地であったこの敷地にさらに10戸の住宅を設計しており、今回紹介する住宅は亜鉛鉄板を貼った住宅「V36K08/09」(関連記事はこちら。)の向いに建っている。

写真撮影:Marcel van der Burg。

Pasel Kuenzel Architects による住宅シリーズに関するDezeen 内の全ての記事はこちら。

Dezeen 内の住宅建築に関するその他の記事はこちら。

Dezeen 内のその他の建築に関する記事はこちら。

建築事務所からの説明は以下の通り。
住宅「V35K18」、オランダ
「V35K18」住宅は18棟の全く異なる住宅から構成される都市街区の南側の角に建っています。その全く異なるデザイン、明確な実体そして暗めの配色の結果、このコンパクトな住宅は既存の都市組織の中で優位な「礎石」の役割を築いています。

建築的なディテールは全てこの(開発)方針に従っています。レンガの塊としてのボリュームはガラス張りのヴォイドによって隣接する建物から分離され、四角い全面窓は外壁と同一面になるように設計されています。小さいながらも長いレンガの「Hilversum-format」(オランダの街のひとつであるHilversumに基づく形式)は驚くような優雅さと高貴な雰囲気を可能にし、同時に外壁の黒色がまさに16〜18世紀の伝統的なオランダ建築を思わせます。

機能的にはこの住宅は、仕事に関する居室は1階、リビングスペースはベル・エタージュ(高貴な階)、寝室は最上階といった具合に古典的なオランダ式に構成されています。建物の長手方向側に設けられたガラス張りのヴォイドに収まる壮観な階段吹き抜けは、公的および私的な領域の間に圧倒する空間を生み出しています。

建築事務所:pasel.kuenzel architects、ロッテルダム、オランダ
チーム:R. Pasel、F. Künzel
施主:個人
所在地:ライデン、オランダ
※敬称略
こちらもご覧下さい。
.
![]() |
![]() |
![]() |
| V36K08/09 by Pasel Kuenzel Architects |
V21K07 by Pasel Kuenzel Architects |
V21K01 by Pasel Kuenzel Architects |




コメントする