
北京の建築事務所Sunlay Design が設計した中国安徽省淮南市に建築予定のこの建物は、科学技術研究所の本部が収容された総合施設である。

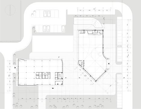
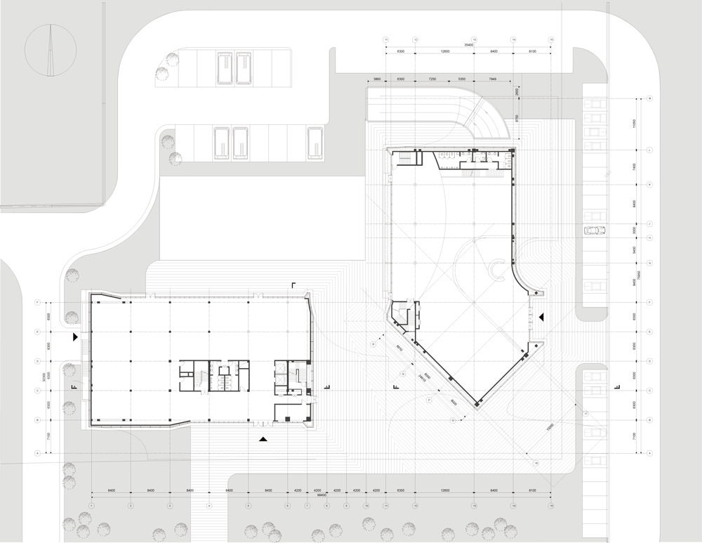
オフィスを収容した高層ビルと左右に広がる片持ち梁建築の2棟で構成された建物本体は、3階にあるガラス張りの通路で結ばれている。

5階建ての建物には、オフィスと展示場、さらに地下駐車場や公共広場が収容される。

着工は2011年である。
片持ち梁建築の関連記事はこちら。
Sunlay Designからの詳細は以下の通りである。
中国の建築事務所SUNLAY DESIGN は、淮南に建設予定の総合科学技術研究所の概要を明らかにしました。
中国安徽省淮南に建設されるこのプロジェクトの中心となるのは、科学技術研究所の本部となる建物です。2棟で構成されるこの建物は、3階のなだらかな通路で結ばれています。
西側は5階建て・高さ23.1メートル・延べ床面積5.500平方メートル、東側は2階建ての展示会場で高さ18.45メートル・延べ床面積2.800平方メートル、公共広場は780平方メートルで地下に3.200平方メートルの駐車場を備え、そこから東西両方の棟にアクセスが可能です。
大きな画像はここをクリック
建築概要
建物の本体や空間は、溶けだした2個の角氷をヒントにしています。これらの角氷は溶け始めると、なだらかな線でむ結ばれます。
建築家はこの概念を通常の箱に応用し、それらの箱を分断したり曲線を描く外壁で接合することによって、なだらかで統一感のある空間を構築します。
大きな画像はここをクリック
角氷の模様
建築家はクラッディングの隙間によって発生する内部の明暗を、デザインの構築に利用しました。本体の構造同様に、外壁にも角氷の原理が応用されています。角氷は光が当たると、屈折により外側から内側に向かって光の傾斜が発生します。
角氷は外側の方が内側より暗く開放感に欠けています。建築家はこの原理を応用し、同様の効果が建物に生まれるよう、隙間や厚みに変化を持たせたクラッディングを構築しました。

外壁の構造
グレーを基調とした湾曲のクラッディングを構築するために3種類の大きさの鏡板を組み合わせ、鏡板2を鏡板1と3の間に無作為に配置することで調和のとれた構造が生まれます。
建物の前面には鏡板1,2,3を組み合わせ、湾曲した外壁には鏡板2,3,4を組み合わせ、結果的に4種類の鏡板を使用していることになります。

外壁の最適化
この建物の外壁は11の平面と14の湾曲部で構成され、全てクラッディングされています。湾曲部の中の2面は二重のクラッディングを施し、残りの12面を一重のクラッディングにすることで、隙間を減らし工程を簡略化することができました。
立地条件
このプロジェクトは、舜耕山の南側を望む科学技術研究所の最も東に位置し、トンネルを経て市の中心部とつながっています。

建築内容
B1:駐車場・職員用食堂・機械室
1F:展示スペース・店舗
2F:オフィス・会議室・多目的ホール
3F:オフィス・会議室・資料室
4F:オフィス・会議室
5F:客室
大きな画像はここをクリック
景観
クラッディングと地面が接している付近の舗装された敷地も、建物の延長という考え方に沿って設計されています。建物の前に立つと、クラッディングの模様が舗装された敷地に映し出され、建物と周囲が一体化します。
大きな画像はここをクリック
建築構造
建物全体のうち2棟は片持ち梁の構造を持ち、3階にある通路で結ばれています。これらはどちらも建材に鋼鉄を使用しています。
この片持ち梁の建築は長さが最大で20メートルあり、片持ち梁の両端部には強度を高めた支柱と鋼鉄製の横材が使用されています。
投稿/キャサリン・ウォーマン
翻訳/ハートフル・ジャパン 鳴海 亨
Dezeen記事(オリジナル)はこちら。
See also:こちらの記事もご覧ください。
.
![]() |
![]() |
![]() |
| Dove of Peace by Sunlay Design |
FRIEM Headquarters by Onsitestudio | More architecture on Dezeen |








コメントする