
ポルトガルの建築事務所、Jorge Mealha Arquitecto が設計したこの住宅は、ポルトガルのリスボンの郊外にあるビーチにほど近いところに建っており、積石造の上部に置かれた白い漆喰塗りのボリュームが特徴的である。

この「Meco の家」は、スキップフロアのエントランス空間に自然光がたくさん降り注ぐ。

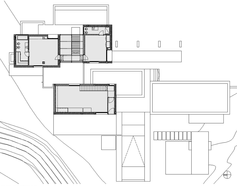
薄金属板でできた自立構造の階段が住宅内部の主な特徴で、両側に手摺として2つのロッドのみがついている。

中央の階段はさざ波のような模様を作り出すガラス窓のあるガラス張りの踊り場へと続いている。

写真撮影:Jorge Mealha

Dezeen 内の住宅建築に関するその他の記事はこちら。

建築事務所からの説明は以下の通り。
「Meco の家」はリスボンの郊外のセシンブラにほど近いメコビーチの樹木の多い敷地に建っており、この家は周囲の空間、美しい自然の風景との親密な関係性をつくることを目的としています。

市議会のマスタープラン計画によって定義された一連の制限規定すなわち、境界線までの距離、アクセス法、建築総面積、容積等は基準を超えるものであり意義を申し出るような状況でした。

結果としてマスとヴォイドに対処しながら、異なる重なり合った固まりのほとんど偶然の構成が生まれました。

周囲の風景の最も興味深いスポットもしくは隣接した屋外空間やボリュームを捕らえるように、開口部は自由な方向に開かれています。

異なる素材を使用しつつ、この住宅は固まりとしての構成を提案します。そして外部と内部領域の間に起こる関係性をコントロールする際にそれぞれの形態の強調性を軽くし、配慮を示唆する機会を与えています。

階段や上階の間に架けられた橋のような循環経路は白く塗られた金属やガラスでできており、できるだけ多くの光を取り入れるようにしています。

建築家:Jorge Mealha
立地:カルカヴェロス、リスボン、ポルトガル

プロジェクトチーム:Arch. João Sítima、Arch. Luís Banazol、Arch. Pedro Pereira、Arch. Rita Melância、Arch. Teófilo Raposo、Arch. Ricardo Manaia
施主:Paula Ribeiro

計画面積:388,50 m2
計画期間:2003〜2006年

施工期間:2008〜2010年















クリックしてイメージ拡大
クリックしてイメージ拡大
クリックしてイメージ拡大
クリックしてイメージ拡大
クリックしてイメージ拡大
クリックしてイメージ拡大
クリックしてイメージ拡大
クリックしてイメージ拡大
クリックしてイメージ拡大
クリックしてイメージ拡大
クリックしてイメージ拡大
※敬称略
.
![]() |
![]() |
![]() |
| House in Tróia by Jorge Mealha Arquitecto |
House by Eduardo Trigo de Sousa & ComA Architects | Torreagüera Vivienda Atresada by Xpiral |















コメントする