
ロンドンの建築事務所Studio 54 Architectureが設計したテラスハウスの一階と庭を結ぶ階段は、ガラスの出入り口とグレーの煉瓦を使った踏み段が特徴的だ。

このプロジェクトの目的は、住宅の裏側にある温室を撤去し、地面を掘り起こして長いグレーの煉瓦を踏み段に使った広い階段を設置することである。

一階に新しくドアを取り付けることで、台所からヒノキ材を使ったテラスに直接出入りが可能になり、ドアの前にある踊り場から小階段を降りると庭に出ることができる。

この小階段の下には園芸用具の倉庫があり、広い階段を使って出入りできる。

Studio 54 Architectureからの説明は以下の通りである。
Belsize Crescent NW3
依頼主の要望は、庭への出入りがスムーズにできるように住宅裏側の一階部分を改装し、その下に倉庫を造ることでした。

近年建てられた温室が、庭へのスムーズな出入りを妨げていたのです。

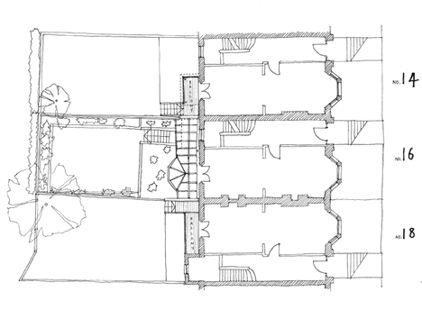
写真上:改築前
温室は取り壊され、巨大な量の土が掘り起こされました。

写真上:改築前
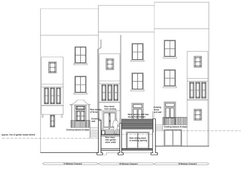
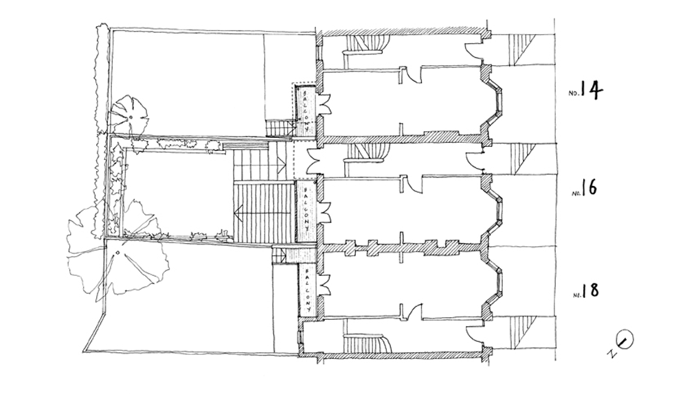
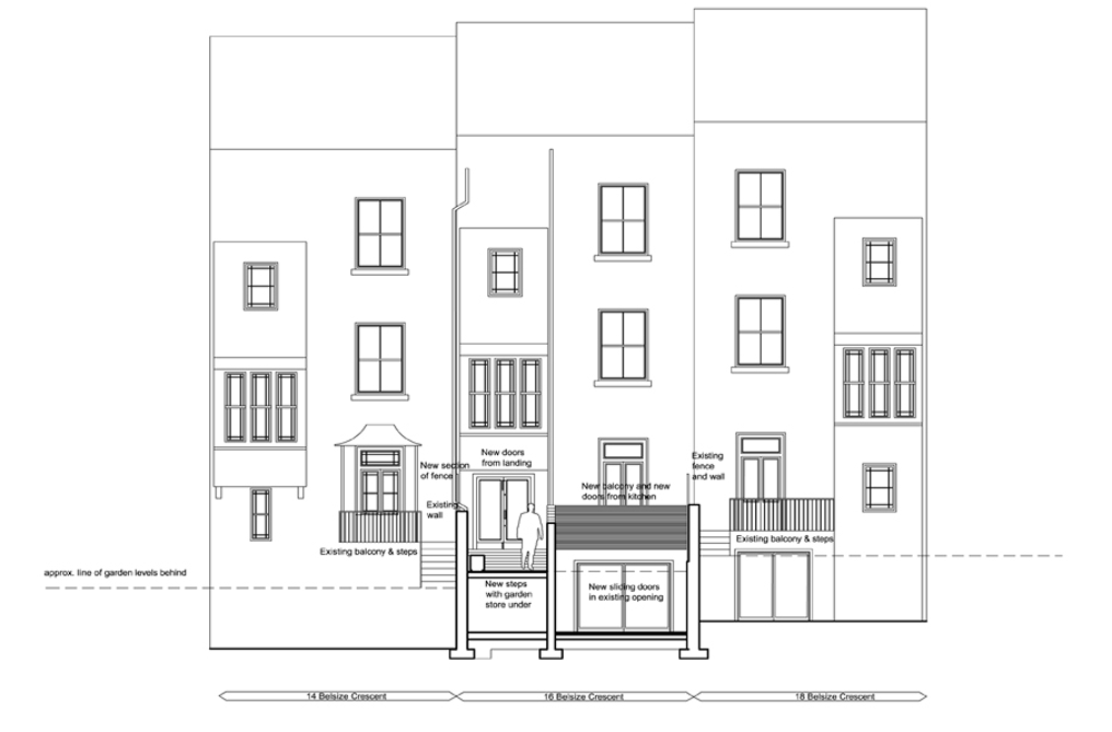
一階下の倉庫から庭に向かって広い階段を設置し、出入り口にガラスドアを設置しました。
大きな画像はここをクリック
一階の新しいテラスと台所が通路で結ばれ、さらに園芸用具倉庫の上にある小階段を降りれば、庭に出ることができます。
大きな画像はここをクリック
庭に下りる小階段は、踊り場を挟んで新しいドアとつながっています。
大きな画像はここをクリック
建材には質素なものを厳選しました。壁と階段には、水平に溝が彫り込まれたPetersen Kolumbia社製の長い煉瓦を垂直に配列し、テラスとドアにはヒノキ材を使用しました。
大きな画像はここをクリック
2010年9月完成
大きな画像はここをクリック
大きな画像はここをクリック
大きな画像はここをクリック
大きな画像はここをクリック
大きな画像はここをクリック
大きな画像はここをクリック
投稿/キャサリン・ウォーマン
翻訳/ハートフル・ジャパン 鳴海 亨
Dezeen記事(オリジナル)はこちら。
こちらの記事もご覧ください。
.
![]() |
![]() |
![]() |
| Stairs-House by y+M Design Office |
Bar Guru Bar by KLab Architecture |
More architecture stories on Dezeen |














コメントする