
「Wellham Studio」という名のこの建物は絶縁状のベニヤ板で覆われており、緑化屋根をもつ。

構造はワシントン州のフィダルゴ島(Fidalgo Island)でSwinomish 族(ネイティブアメリカン)と共に行なったMerer の以前の作品である「Landhouse」プロジェクトを参考にしている。そのプロジェクトは Merer が土地や周辺環境と強い関係性を持つ環境負荷の少ない建物を建てる方法を探求するものであった。

写真撮影: Louis Porter。

建築事務所からの詳しい説明は以下の通り。
「Welham Studio」は、風と雨の相互作用を通して泥と砂が形作る物体を観察しながらの配置の研究から始まりました。

この作業は物体と環境の統合を模索しています。

この作業のひとつの見地は三角形を取り入れた基本的な形態を発展させました。またこの作業はワシントン州のフィダルゴ島でSwinomish 族と共に行なったプロジェクトの基本となりました。

「Landhouse 」として知られるようになったSwinomish の住宅プロジェクトは、2006年に始まりました。それはシアトルに住むひと組のカップルが私のスタジオを訪れたことから始まりました。

彼らは実施されるプロジェクト、それらの土地との物理的関係そしてどのようにそれが建物に変換されるのか興味を抱くようになりました。

ペノックが私と建築家の友人であるシアトルのCedar Tree アーキテクツの Art Peterson を合わせる機会を設けました。彼はワシントン州のフィダルゴ島のSwinomish 族の Ray Williams と共に仕事をしており、ちょうど伝統的な長屋を建設を終えたところでした。

彼らは、Swinomish の信念と伝統から遠くかけ離れた、かれらの周辺環境との類似性を持っていないフィダルゴ島における現在の住宅事情に関して議論を繰り返していました。

住宅群は現在周辺環境と彼らの伝統に関係なく設計され、建てられています。

ミーティングが行なわれ、その結果割り当てられた開発エリアにふさわしい環境にやさしい建築計画のアイデアが生まれ、「Landhouse」が建てられました。

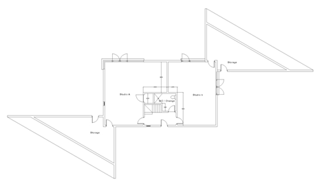
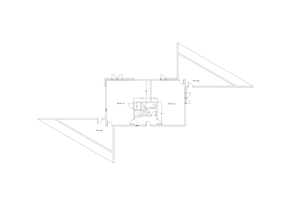
高齢者、学生、シングルファミリー、休暇用、多世帯家族および地域施設などに適応するような基準寸法ユニットに構造体を細かく開発しました。

上:Swinomish の住宅群
そして英国に戻り、自分たちのために一軒建てようと決めました。その建物は今ほとんど完成間近で来年の春には竣工予定です。

上:Swinomish の住宅群
これが私と私の妻でアーチストのLucy Glendinningが作る「Welham Studios」となりました。

上:Swinomish の住宅群
この建物は、Swinomishプロジェクトにも関わっているシアトルの工場で制作した構造的に絶縁状のパネルで建設されています。これは基準ユニットの実験となるものでした。

5m x 2mサイズの断熱フォームとして3層のベニヤ板を用いました。

屋根は、内蔵型のルート(根)バリア付きのEPDM膜で施工されており、その上に野生花の芝が100mmの基板を覆っています。

現在、「ランドハウス」とのコラボレーションで種族コミュニティと一緒にランドスケープに関する開発デザインのためのアメリカ全土でのリサーチプログラムを設立するためのパートナーを探しています。

デザイナー:アーチスト兼彫刻家の Mark Merer
所在地:Welham, Somerton, Somerset. TA11 7AJ. UK.
クリックしてイメージ拡大
エンジニア:John Beverage. Street, Somerset. BA16 0HA. UK.
SIPS: Premier Building Systems 4609 70th Avenue East Fife

クリックしてイメージ拡大
コンサルタント・アーキテクト:Art Peterson 3518 Fremont Ave. N., #477
野生花の芝生供給:Lindum Turf west Grange Thorganby York YO19 6DJ

クリックしてイメージ拡大
外壁:Binderholz Gm6h Holzindustrie Zillertalstrabe 39
窓:neer - sud Fenster, Sud-fensterwerk, GmbH & Co.

クリックしてイメージ拡大
プロジェクト期間: 2008 / 2009
予算:£350,000
クリックしてイメージ拡大
See also:
.
![]() |
![]() |
![]() |
| 8 House by BIG |
Nature Centre by EFFEKT |
Sunnyside Up by SO-IL |







コメントする