

これは 5つの建築から成るAlain de Botton's Living Architectureと呼ばれるプロジェクトの最初の建築で、10月22日より貸し出しが行われている。

建物全体は反射性のある金属パネルで覆われ、内装はオランダのデザイナー Studio Makkink & Beyが手がけた。

.

MVRDVからの詳細は以下の通りである。
先頃完成した「バランシング・バーン」は、イングランドのサフォーク州ソリントン近郊に建築された片持ち梁の構造をした別荘です。長さ30メートルの家屋のうち、15メートルが片持ち梁のように下り斜面の敷地へ飛び出し、まさに建物が自然の一部と化しています。Living Architectureは、現代建築の創造を掲げMVRDVが2008年に設立した団体です。ケンブリッジを拠点とするMole Architects が主催するこの団体は、アムステルダムのデザインスタジオMakkink & Beyと共同で別荘の内装を手がけました。この別荘は有料で利用することができます。

「バランシング・バーン」は、イギリスのサフォーク州ソリントン近郊の田園風景が広がる小さな湖のほとりの景勝地に建築されました。この別荘は建築技術を駆使することで、敷地や周囲の景観と調和が図られています。伝統的な納屋の外観や反射性の金属パネルは、この地方特有の建築を模ったものです。このような点において「バランシング・バーン」は、地方を再評価し、そこに現代建築を取り入れるという目的に叶ったものになっています。さらに、この建築は心安らぐ魅力的な別荘でもあります。快適さと優美を限りなく追及し、典型的なイギリスの田園風景に根差したこの建築は、住む人を魅了せずにはいられません。

300メートル離れた私道の入り口から眺める「バランシング・バーン」は、小さな2人用住宅の佇まいです。しかし、この私道を突き当たった時に突如として、建物と片持ち梁の全景が目の前に広がります。長さ30メートルの別荘は、片側の15メートルが片持ち梁のように下り斜面の敷地に飛び出し、建物が自然の一部と化しているのです。このような驚くべき構造によって、自然を直線的に体感できるのです。敷地の構造上風景もスロープ化し、訪れる人は最初地上で見た風景を、最後には木の上から眺めるような印象を持つのです。このような直線的構造により、風景の変化を体感できるのです。

建物は中央部で片持ち梁となって、下り斜面の敷地に向かって突き出しています。この曲芸とも言える外観は、安定した建築構造によって生み出されたもので、建物の半分が中に浮いた形になります。中央部にコンクリート製の芯材を入れ、片持ち梁の部分よりも地面に接している部分に重い建材を使用することで、建物全体のバランスが保たれています。建物両側は樹木で覆われ、内部や周囲のプライバシーが保たれます。
大きな画像はここをクリック.
反射性の金属パネルを使用した外壁は、傾斜屋根同様に、この地方特有の建物を模ったもので、周囲の景観や季節の変化を表しています。
大きな画像はここをクリック。
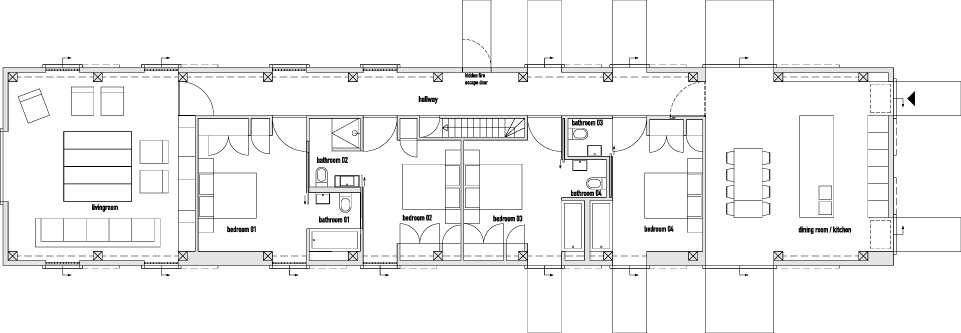
室内に入るとすぐにキッチンと広い食堂があります。さらに浴室とトイレを備えた4部屋のダブルベッドルームが続きます。建物の中央部には、連続する寝室を遮るように隠し階段があり、そこから下の庭に出ることができます。一番奥の片持ち梁になった部分は広い居住空間で、三方の壁と床、さらに天井に窓が組み込まれています。

大きな画像はここをクリック。
暖炉を設置することで、雨の日にも基本元素(地、火、風、水)を体感できます。各部屋に備えられた天井まで伸びる可動式の窓や室内灯によって、絶えず自然と身近に接し、風景を楽しむことができます。

大きな画像はここをクリック。
内装は2つの主要な目的に基づいてデザインされています。
この別荘は2人用の住宅を構造や内装面で拡張し、最大8人までが快適に過せるよう設計されています。二人住まいでも広すぎず、8人でも狭苦しさを感じさせない構造になっています。
内層の壁には色を抑えた飽きの来ない板材が使用され、Makkink & Beyがデザインした調度品類と共にこの建築のコンセプトを反映しています。

大きな画像はここをクリック。
各部屋はそれぞれテーマに基づいてデザインされています。ジョン・コンスタブルの雲のスケッチやトマス・ゲインズバラの田園風景は、部分的にぼかしや拡大され、カーペットや壁紙、さらに壁の生地として使用されることで、イギリスの現代と過去を橋渡しする役目をしています。

大きな画像はここをクリック。
陶器類にはイギリスの伝統的な工芸品2セットと来客用として現代的な6セット用意し、様々に組み合わせることで家庭的な雰囲気が生まれます。
大きな画像はここをクリック。
この別荘は断熱効果が高く、排熱回収システムによる換気や地熱を利用した暖房設備を取り入れることで高いエネルギー効率が可能になります。
投稿/ローズ・エサリントン
翻訳/ハートフル・ジャパン 鳴海 亨
Dezeen記事(オリジナル)はこちら。
See also:こちらの記事もご覧ください。
.
![]() |
![]() |
![]() |
| More about this project |
Even more about this project |
More about Living Architecture |







コメントする