
数年に渡って、元「アプレンティス・ストア」は4棟の建物がさらに加えられ、この新しいコンバーションでは階段や通路の数々によって全ての建物をつなげている。それらは中央の壁周りで起伏しており、住宅の周囲に循環経路を設けている。

建物の元々の特徴的な箇所は修復され、既存の構造から切り離された現代的な増築部分が加えられた。

木造の梁とトラスが露出した特徴的な空間。

住宅の南側に設けられたガラス張りの窓によって、オープンな間取りをもつリビングスペースは自然光をいっぱい浴び、後ろの谷の全景を見渡すことができる。

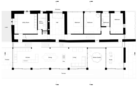
ベッドルームとバスルームは入り口近くに2層に渡って配置されている。

写真撮影:チャールズ・ホセア(Charles Hosea)。

建築事務所からのくわしい説明は以下の通り。

「アプレンティス・ストア」は DeMontalt Mill に隣接した付属的建物で、200年以上に渡って4つの連棟する建物が発展しながら付け加えられました。

English Heritage Buildings at Risk register(英国の遺産建築物のリスク登録)に登記されていた建物で、下部の不安定な地質状態のために谷が、徐々に滑り落ちていました。

歴史的遺物を修復し、現代的な用途の明らかに新しい層を挿入しながら、発展を続けるこの敷地の歴史に誠実であるように、計画を進めました。

対になったシンプルで強健なマテリアルのパレットが、オリジナルの素材と産業建築遺産を尊重するように適用されました。

デザインによって、4棟の隣接してはいるけれども個別の建物を、圧倒的で中央に位置するバース特有の石壁の周囲を起伏する循環経路のような細長いエレメントでしっかり結合しようと務めました。

異なる建物群を通って移動しているという感覚を伝えることを意図している動線は、それらの空間を通して一連の視覚的連続性を生み出しています。
クリックしてイメージ拡大
住宅内には北側の中庭から上部に橋の横切る吹き抜けのある石造りの空間へ入ります。
クリックしてイメージ拡大
主な耐力壁に設けられた狭い孔を通って、高くなった循環する細長いエレメントに立つと、日光がさんさんと降り注ぐ広々としたリビングスペースがあり、眼下に下っていく谷の眺望に直面します。
クリックしてイメージ拡大
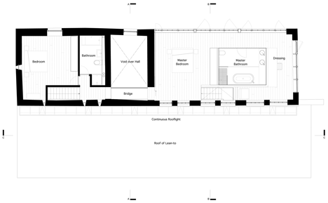
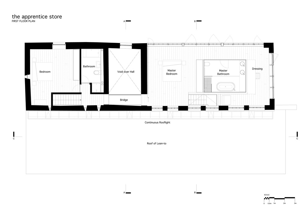
プライベートベッドルームとバスルームの角室は北側に2層に渡って配置されており、吹き抜けのある隔てられたエントランスホールと循環エレメントの橋で繋がっています。
クリックしてイメージ拡大
接続する新しい片流れ屋根の構造はバースストーンの耐力壁の上方に設置されました。
クリックしてイメージ拡大
片流れ屋根と壁の間の合流点には、空間の全長に渡る壁を照らし出す日光が注ぐ連続した天窓が設けられています。
クリックしてイメージ拡大
※敬称略
See also:
.
![]() |
![]() |
![]() |
| Tuscany Barn House by Julian King Architect |
Double Family Home by Chris Lim |
Haus + by Anne Menke and Winkens Architekten |











コメントする