
「レッド・オブジェクト」と呼ばれるこの閉じた空間は、以前工場だった建物の内部にあるオフィスの一部を形成している。

このプロジェクトではまた2箇所の中二階レベルを設け、コンクリートの内壁を白色樹脂でコーティングし、吹き抜けの周りに黒い受付デスクと作業台を設置した。

写真撮影:カワノマサト

以下に続く説明は3Gatti Architecture Studioより。
「レッド・オブジェクト」
元工場をオフィスに改築。
赤と黒は歴史においてアバンギャルドな色です。前世紀では倫理的および文化的信念を画期的な表現の形態に結合させた大胆で妥協のないイデオロギーと芸術運動をこれらの色は象徴していました。

赤と黒は、白がそれらの色の重要性もしくは意味を配列する真空もしくは空虚を表現するのに対して、特定の混乱もしくは物体の本質に向かう緊張を表した色です。

まだ何も書かれていない空白の紙は白です;文章が書かれると、赤色は言葉に下線を引くのに用いられます。同様に現代風の設定で、Francesco Gatti は設計する物体に色を関連づけたのです。

上海の中心に建つ元工場であった建物を改装するに当たって、当イタリア人建築家には、オフィスとして使用されること、多機能な空間であること、会議室および受付とカフェを設けること、といった前提条件である最終的な要望と従うべき特定の基準が与えられました。

部屋の高さを考慮に入れ、上部空間を2箇所の中二階に分割し、2つの橋廊下で繋がっているようにしました。これによって中間的でかつ中心的なヴォイドが生まれました。

床に用いた白色樹脂とコンクリートに直接塗装したエポキシが2倍の天井高を、実用的機能をもつ完璧な環境に仕立てています。また全てが彫刻のようなオブジェクトの内部に収められています。
Click for larger image
クリックしてイメージ拡大
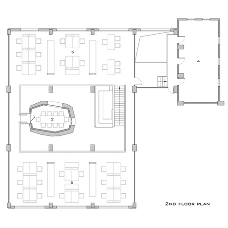
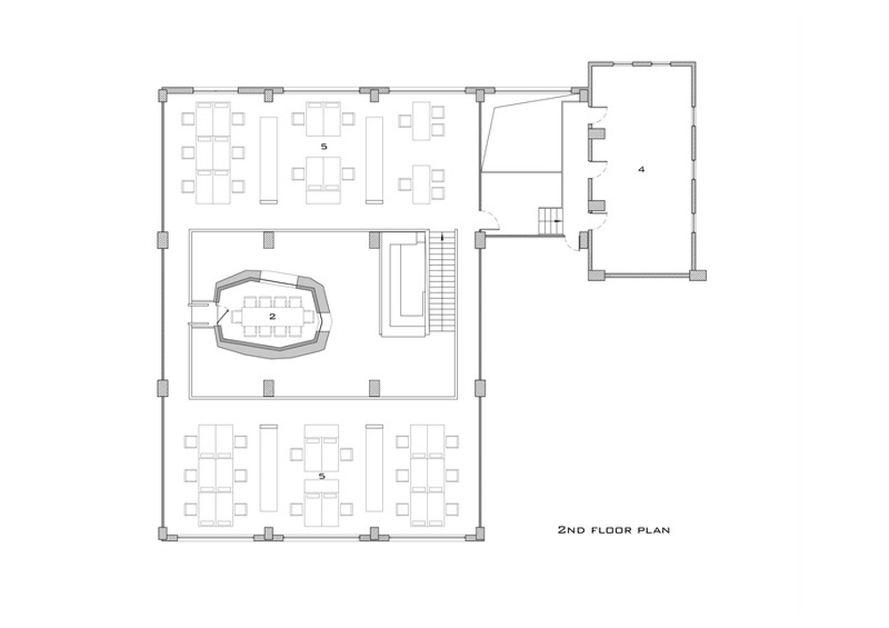
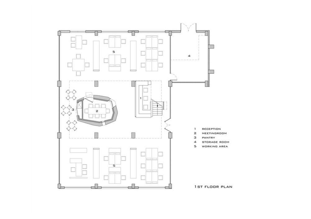
多面体の「レッド・オブジェクト」は下層に2つのミーティングルーム、キッチンを含んでいます。ライトアップされる薄片のヴォイドによって床から切り離されており、白い樹脂に反射します。
控えめで彫刻的な受付デスクは、階段の手すりの湾曲に融けある形で設置されています。その他の長いベルトのような面は中央エリアに向かって伸びる作業台として使用することができます。
クリックしてイメージ拡大
プログラム:2層にわたるオフィスのイベント用オープンスペース、2つのミーティングルーム、レセプションエリア、バー、特別なドレス収納/展示室、倉庫、給仕室
クリックしてイメージ拡大
建築事務所:3GATTI.COM ARCHITECTURE STUDIO
アーキテクト責任者:Francesco Gatti
プロジェクトマネージャー:Ingrid Pu
コラボレーション:Paola Riceci, Jessie Zheng, Candy Zhang, Vivian Husiyue, Ben Hou, Peter Ye, Sunny Wang, Chen Han Yi, Robin Feng
建設会社:K2Lab
エンジニア:Jachy Yan
施主:Italia Servizi s.r.l
所在地:Jing An 地区、中国上海
総面積:708 m²
クリックしてイメージ拡大
素材:
一階:白色樹脂
中二階:鉄骨造、透明エポキシ塗装仕上げコンクリ--ト床
レッド・オブジェクト:コンクリートおよび積レンガ構造、木造副構造、プレキシグラス窓付き石膏ボード貼り
受付デスク:鉄骨造、木製天板にグレーのピアノ塗装仕上げ
See also:
.
![]() |
![]() |
![]() |
| Cheap Monday Office by Uglycute |
Goldberger by Tervhivatal |
Wieden + Kennedy offices by Featherstone Young |









コメントする