
建築家は、既存の建物内に新しいボリュームを創り、その新しい構造体と教会の壁の間に通路を設けた。

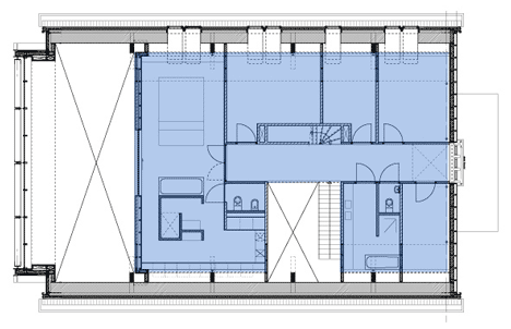
オープンな間取りをもつ内部は、既存建物の木製パネルのアーチ形天井と窓を取り入れている。

住宅の後部にあるガラスのファサードからは川が眺められる。

写真撮影:レネ・ド・ヴィト(René de Wit)。

以下の情報は建築事務所より。
プロジェクト「教会の中の住宅」は柔軟性のある再利用の見事な例と言えるでしょう。1930年代の教会は宗教的聖域としてのその生涯を終え、ある家族がこの建物を用途変更したいと申し出るまでは、車の修理および販売ガレージとして利用されていました。

Ruud Visser Architects と Peter Boer の協力で、この教会は4人家族にぴったりの家に生まれ変わりました。

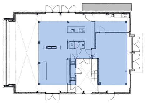
教会の容積は通常の住宅としては大きいです。ごく普通の大きさの住宅という印象を作り出すために、建築家は既存建物全体を住宅として利用するより、住宅を教会の中に収めるという手段を取りました。そのため教会の中を歩き回ると、新しい住宅の周りを歩いているということになります。

教会の最後の部分である翼廊は開いたままにされています。ここはもともと祭壇の場所でした。オリジナルの「ステンドグラス」窓から光が差し込みます。

教会の後ろのちょうど翼廊の背後に小さめのボリュームが設けられました。このボリュームはおよそ7mの奥行きで、ド・ロッテ川の土手に直接その裏側ファサードを向けて建っています。

もともと、このボリュームは教会の聖歌隊席でした。しかし既存の状態ではこのボリュームは完全に朽ちていました。
クリックしてイメージ拡大
Ruud Visser Architects はこの聖歌隊席を厳密にオリジナルの聖歌隊席と同じ形態でありながらも少々縮めて、新しい現代的な空間に置き換えました。この新しい空間は床から天井までの高さの窓を持っています。
クリックしてイメージ拡大
これによって、この「教会の中の住宅」は今では美しい風景に開かれています。そして翼廊は公共的な屋外と私的な住宅内との間の緩衝として機能します。
クリックしてイメージ拡大
※敬称略
See also:
.
![]() |
![]() |
![]() |
| Parish House St. Josef by Frei + Saarinen Architects |
Dezeen's top ten: churches |
More architecture stories on Dezeen |
More: Architecture, all
翻訳者:寿藤美智子
Dezeenオリジナル記事はこちら。








コメントする