
「Play House」はタンゲランのブミ・サーポン・ダマイ地区にあるゲート付き敷地内に建つ120戸の住宅のひとつである。

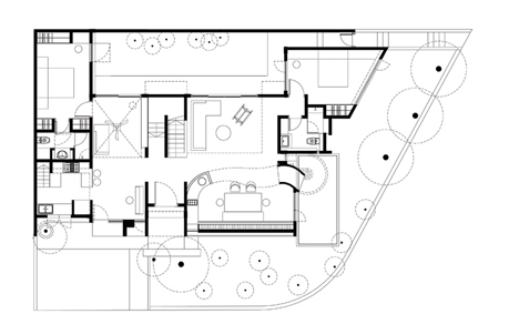
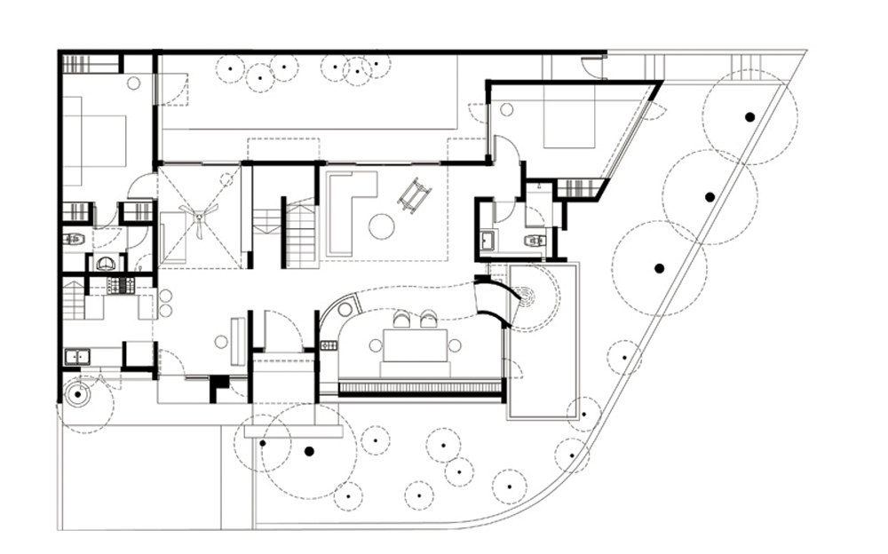
3つの閉じられた寝室以外、室内は白塗りの壁と打ちっぱなしコンクリートの10mの高さの天井からなる開放的なプランになっている。

オープンな階段は1階の図書スペースとリビングエリアの間にあり、2階のギャラリーへと続いている。

2階建てのこの住宅は打ちっぱなしコンクリートの外観をもち、部分的につる科の葉で覆われており、スリット状の窓と天井までの高さのガラスで開口部が設けられている。

この家はコンクリート造による大きな熱容量を蓄える固まりであり、自然換気や日影の利用と耐熱処理および40mmの壁空隙によって夏期のオーバーヒートを防止する。

全ての写真はハッピー・リム・フォトグラフィーによる。

以下は建築事務所からの説明。
「プレイハウス」、タンゲランのブミ・サーポン・ダマイ地区
この2階建て住宅はタンゲランのブミ・サーポン・ダマイ地区に建っています。ゲート付き新興住宅地のひとつであるこの家は、隣接する200平方メートルの空地の新しい建物による既存の120タイプの住宅との合併です。

角のセットバックによる制限で、全体で320平方メートルある土地のわずか150平方メートルしかこの建物は利用していません。

材料はほとんど剥き出しの打ちっぱなしコンクリートが主材料として占めています。このコンクリートの固まりのところどことろに主要道路に面して小さなガラスの切り込みや開口が設けられています。

概して、別の落ち着いた外観の家への親しみある様子を醸し出しながら、十分な緑の垂直壁で内部に向かった建物として存在しています。

この住宅には主に3つ多様な世代家族が住んでいます。この家の主は5歳の男の子で、彼は人生とは全て遊びと考えているので、この家の設計もそれに従いました。

2棟の主要建物の間にはさみ込まれたコンクリート製の彫刻的な滑り台があります。

これは、小さな図書スペースとリビングアリアの間にある普通のオープンな階段の代わりに彼が選んだ3階の自分の寝室から2階のダイニングルームへの「移動手段」です。

この滑り台はまたこの男の子が忙しい授業スケジュールの後に遊ぶお気に入りの場所なのです。時々この滑り台の双方の出入り口はいくつかのプラスチックのおもちゃや洋服などで塞がれ、秘密の基地になったりします。

3つの閉じられた寝室以外、この家の残りの空間は打ちっぱなしコンクリート壁と天井の白とグレーによって占められた開放的な空間になっています。

コンクリートを壁および天井に流し込む際に出来た欠陥(ひびなど)はこの家に自然な装飾となる「要素」の軌跡を残しています。
クリックしてイメージ拡大
コンクリートは主な建築材料として選択されたのは、単にその二元的な特性からです。それは構造要素として多くの必要とされる力を持っています。それでいてその柔軟性は、自らが形成する場所にある感情を生み出すようなおもしろい緊張感があります。
クリックしてイメージ拡大
コンクリートという素材は簡単に熱を蓄えることで知られているので、圧倒するコンクリートの壁や屋根の使用という選択は、しかしながら、この熱帯気候において非常に挑戦的な状況を提起しています。
クリックしてイメージ拡大
非常に高い天井(10m高)になっているので、外気に面した屋根の表面に特別な耐熱膜のコーティングを施し、(すぐに屋根まで成長する)十分なツル科の植物で外壁を覆っています。これによって内部の蓄熱をかなり抑えることができます。
クリックしてイメージ拡大
自然喚起と日光の調整はこの家の重要な要素です。全ての開放的な空間には空調装置はなく、完全に開口部や壁と壁の間の切り込み、窓、屋根などからの新鮮な空気の循環に頼っています。金属棒の構造を利用したコンクリート屋根下に下げられた天井扇が新鮮な空気を撹拌します。
クリックしてイメージ拡大
常に入れ替わる空気の流れを促すために、40cm離して設置された壁が部分的にあります。この長い隙間内に水平なガラスルーバーを設置することで「雨」窓を作り出すのを可能にしています。
クリックしてイメージ拡大
低い生け垣の刈り込まれた庭を設けるよりも、家主は代わりに大木を植えることを好みました。それらの木々は一日のある一定の時間内に特に必要とされる場所(特にガラス窓が床から天井まで占めている場所)に日影をつくるように庭面に戦略的に配置されました。
クリックしてイメージ拡大
この「ローテク」戦略で、大規模なコンクリート素材の使用のために起こる多くの共通する問題を単純に解決しています。
建築事務所:Aboday - Ary Indra, Rafael David, Johansen Yap, Wahid Annasir, Armeyn Ilyas
構造コンサルタント:Prijasembada
電気空調設備コンサルタント:Darwan
ランドスケープ:Hagani Flora
建設会社:Sabar
写真撮影:Happy Lim
See also:
.
![]() |
![]() |
![]() |
| Villa Paya-Paya by Aboday architects |
Ivy house by Hiroyuki Miyabe |
More architecture stories |












コメントする