
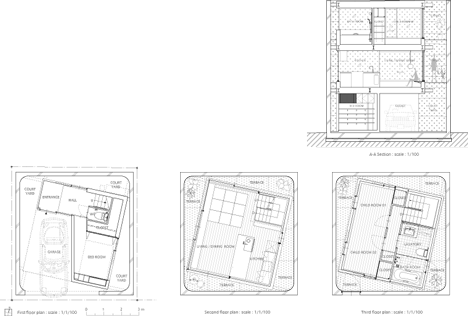
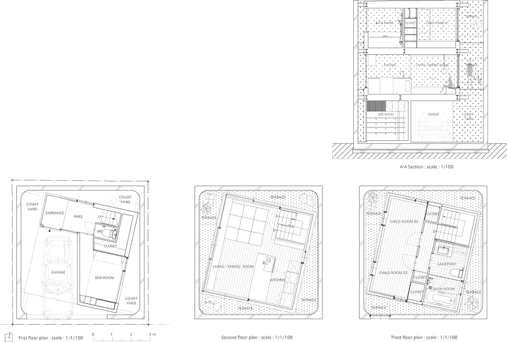
広島にある日本の建築設計事務所サポーズデザインオフィスによるこの住宅はオフセットコンクリートの枠組みに囲まれ、外壁と内壁の間にある種の三角形のテラスを作り出しています。

1階と2階にある壁と住宅の間にある空間は有孔鋼で埋められており、テラスを作り出して下部にある中庭に光を入れています。

壁に囲まれた方面にある空間が、3角形の形をテラスと中庭に与えます。

外壁は強化コンクリートで作られ、住宅は鉄骨建設となっています。

この住宅は2人のお子さんがいる夫婦のためにデザインされています。住宅には車庫、主寝室(しゅ しんしつ)、1階には玄関ホールがあります。

1階はキッチンと居住スペースで、2回はお子さん達の寝室になっています。

写真撮影:太田拓実

建築士からの詳細な情報は以下の通りです:
南町3の家
南町3の家は、夫婦と2人のお子さんのための住宅です。

立地は古い商店街・住宅がまだ息づいている場所です。

住居の敷地面積はわずか55平方メートルで、形は正方形です。

またこの場所にある住居は互いが非常に近接しているため、プライバシーを保ちつつ住居を解放的にするのは非常に困難でした。

この住宅の独特なデザインは建物と外部要素の間にある関係です。

この敷地沿いに追加の壁があり、たった建坪29平方メートルの住居をすべて覆っています。

この住宅は外壁と敷地にたいして平行ではなく角度をつけています。

壁と内部建設の間の隙間を通じて、太陽光が降り注ぎ2つの建設物の中間を反映しています。

この壁は良好な照明状態を作り、またプライバシーを守りつつ外部に対して開放的な環境となっています。

さらに外部構造は隙間の空間を居住スペースの一部として統合することができました。
クリックすると拡大イメージ
通常は住宅から離れている材料である外部構造を再デザインすることにより、この住居はより外部要素と良好に関与しながら、豊かな生活環境を作り上げることができました。
南町3の家
所在地:日本 広島市
主な用途:個人住宅
敷地面積:54.56㎡
建坪 :28.92㎡
延床面積:79.23㎡ ( 1F:26.41㎡ 2-1F:26.41㎡ 2-2F :26.41㎡ )
竣工:2010年 4月
デザイン期間:2008年3月~2009年5月
建設期間:2009年6月~2010年4月
構造:鉄骨構造、外壁:強化コンクリート
依頼者:児童2人を持つ夫婦
プロジェクト建築士:谷尻 誠(サポーズデザインオフィス) 名和研二(なわけんジム)
プロジェクトチーム:谷尻 誠(サポーズデザインオフィス) 名和研二(なわけんジム)
担当:山上 弘
照明:GLO-BALL S1[フロス]
鉄筋支持具:なし
製品:オリジナルのテーブル
床:オーク製
内壁:ビニールクロス
天井:ビニールクロス
See also:
こちらもご覧ください:
.
![]() |
![]() |
![]() |
| House in Hiro by Suppose Design Office |
House in Kodaira by Suppose Design Office |
More about Suppose Design Office on Dezeen |
翻訳/ハートフル・ジャパン 小川美紀
Dezeen記事(オリジナル)はこちら





コメントする