
チリの建築事務所Moure Rivera Arquitectosが手がけたこの家は、ユークリッドの数学論、いわゆる古代から知られている幾何学の体系に基づいた設計である。


Moure Rivera Arquitectosからのさらなる情報は以下のとおり。
「ハウスA」は、慣習的な意義や関連性は考慮せず、鏡映(1つの軸について反転させて対称的な図形を作る変換)と陰関数表示によって生みだされる構造に基づいた住宅です。機能的なアプローチからのみ出現する意義を還元しています。ビジュアルデザインの概念や感覚を変えて本来あるべき所に対象物をセットするという時空を越えたスタンスを持つことで、慣習的な意義とは違ったかたちの意義を見出せます。


側面積13.68平方メートルは、建築予定地での可能性調査によって算出されました。面積・認識要素・比率・比例は最初の段階で割り出されます。第一段階は抽象的で三次元構造などの別の目的を持つ構造に対する解決法を見いだす情報源となります。


建築造形を観察する際、平面や立方体は二次元の課題と三次元空間のはざ間にある弁証となっています。なぜならば、造形物観察の際、観察者を介しての対象物ではなく、対象物自体を介した造形を見るからです。スケッチや3Dの造形を通して、「観察者が見たものは何か」「対象物は何だったのか」ということが示されます。

近代運動時代の初頭、物体の占有に関する研究に使用された概念がありました。それは、ピーター・アイゼンマン氏のチャートの研究の後たどりついた、テオ・ファン・ドゥースブルフ氏とアルベルト・サルトリス氏の概念です。以下、彼らの言説からの引用。建築物は、目的・言語・自動的な造形を用いて自らを構築することが可能です。二次元と三次元の最初の不等角投影によってもたらされた四角面は、新しい建築創造のためのダイアグラムと配列の源となります。
クリックすると拡大イメージ
面積187m2の四角形を調和分割することでこの配列と順番が生まれます。さらなる再分割によって、三次元形状のガイドラインが作成されます。まずは、四角形の下よりに斜めの線を引きます。それにより、独創的な建築物により良い投影がもたらされます。円弧と斜めの線が交わる点で分割されます。
クリックすると拡大イメージ
この小区画(格子)により住居内の最初の構造が生まれました。
クリックすると拡大イメージ
補助線による新たな格子の作成が可能な限り、この過程は体系的に繰り返されます。同様のことが三次元のレベルでも行われます。
クリックすると拡大イメージ
平面から作られた長方形の大きさによって並列プログラムは測定されます。それから、正方形内の関連性を通じて体系化されます。
クリックすると拡大イメージ
最初の横並び・縦並び構造の区画線を作るため、区画とプログラムは共通する要素を持っています。
家並みに沿った不等角投影を作るため、並列に引かれた線を押し出します。そして、並んだ四分円によって生まれた建築本体の空間を規則性に従って切除していきます。よって、その場所には何も存在しません。常にその線は選択された構成成分と関連性があり、新たな空の空間を作り出しています。
クリックすると拡大イメージ
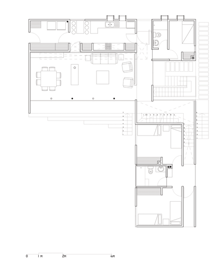
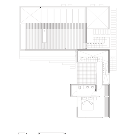
この家は187m2の敷地に建ち、4つの部屋、3つの浴室、リビングルーム、キッチン、開廊、バーベキューエリア、テラスがあります。
クリックすると拡大イメージ
投稿/ローズ・エサリントン
翻訳/ハートフルジャパン 福田美和
Dezeen記事(オリジナル)はこちら。
See also:
こちらの記事もご覧ください。.
![]() |
![]() |
![]() |
| Viva Store in Santo Domingo |
Prefabricated Nature by MYCC |
More architecture stories |













コメントする