
シュトゥットガルトの写真家 ズーイー・ブラウン氏より、ドイツの建築事務所 SoHo Architektur 設計によるバーバリアの「波形の家」の画像が送られてきた。




全写真:ズーイー・ブラウン氏
建築家からのさらなる情報は以下のとおり。
SoHo Architektur
建築家 アレキサンダー・ネイジェル氏
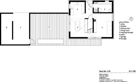
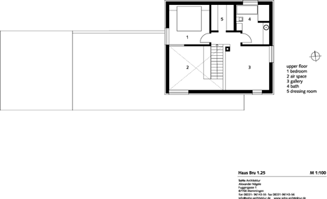
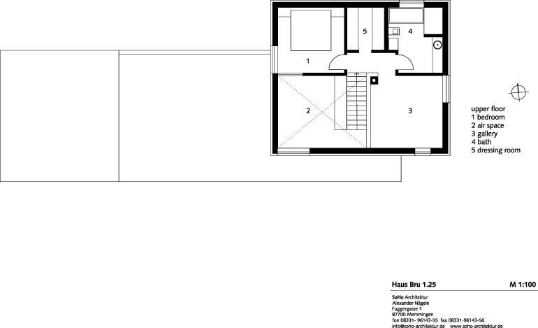
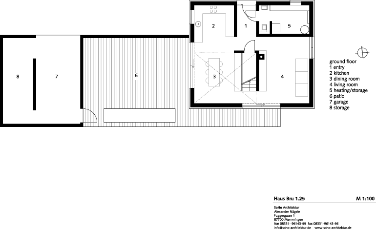
Haus BRU 1.25, ハイマーティンゲン

90m2の居住空間を持つ125,000ユーロの一軒家はカップルのために ----さらに言うなら、建築家の兄弟のカップルのために---- 建設されました。

建築コスト最優先で、工法、材料、材質を決定しました。

打ち放しの内壁、モルタル仕上げの床、床と壁の間のむき出しになった断熱材、外壁や屋根を被覆する繊維セメントの波形パネル(これにより、雨どいや屋根のとい設置の必要性が排除される)は建築コストの削減に貢献しています。


2階分の吹き抜けになっている居住空間は1階と2階を密接に結び付けています。
家屋とガレージの間に設けたウッドデッキは、北側をコンクリートで南側は花壇で仕切られており、プライベートな屋外空間をもたらします。
上をクリックすると拡大イメージ
地元の新聞報道によると、この建築設計の斬新さゆえ、近隣住人より情報開示の要請があったとのこと。しかしながら、この小さな住宅はこれまでの一般的概念に対して「経済的選択の新たな可能性」を示しています。
上をクリックすると拡大イメージ
上をクリックすると拡大イメージ
上をクリックすると拡大イメージ
上をクリックすると拡大イメージ
投稿 / ローズ・エサリントン
翻訳 / ハートフル・ジャパン 福田美和
Dezeen記事(オリジナル)はこちら
こちらの記事もご覧ください
.
![]() |
![]() |
![]() |
| House Satiya by adn Architectures | 55 Blair Road by ONG&ONG |
Marne College by Wind Architecten |









コメントする