
「Vol House」という名のついたこのプロジェクトでは屋上テラスへと続くガラスのファサードをもつ主寝室が上階に増築された。

松材のフローリングが家全体に使用され、ルーフデッキも木製なのが特徴的。

既存のドアと木製フローリングは修復され改装された内部空間にうまく融合している。

以下は建築事務所からの説明。
VOL HOUSE
プロジェクトの目的はファミリータイプのタウンハウスの修復と増築でした。この建物はブエノス・アイレス市内のパレルモ地区にあり、20世紀初頭に建てられたものです。21世紀の生活スタイルに合うようにこの家をアップデートすることが課題でした。

この家は通の歩道に面しており、このような通りは種類の数少ない都市副システムのひとつで、ほとんど変化することなくそのままの状態にあります。通りはタウンハウスの並びによってかたち作られ、それぞれの建物は似かよった構成をしています。奥に位置する室内パティオが単純な間取りを3つの特有の広々とした空間に分けています。何年もの月日を経て、これらの何件かの家々は新たな階が建て増しされたり、既存のテラスがベッドルームや洗濯室またはプレイルームといった新機能に対応するように改築されてきました。

最初は既存の建物全てがその時代特有の同じ様式の性質を共有していましたが、時が過ぎて外観が変わり、なかなかおもしろい折衷的な風景を醸し出しています。幸運にもこれらの変化はもともとの全体的な構成と線、プロポーションとボリュームを崩すことなく、独自の地域的性質とほとんど郊外的な質を維持しています。昔と同様に興味深い既存の建物は歴史的な価値は実際ありませんが、上記に詳細に示した全ての重なる要因のため、解体しないことに決めました。

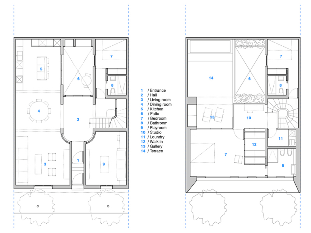
現代の生活に合うように、保存したほうがいい個々のオリジナルの要素を維持しつつ、残りの設計プログラムを満たすために増築部分を加え、既存の類型範囲内でこの家をアップデートするという使命を設定しました。プログラムは二つの平面図と一つの半階平面図に分散しました。一階平面図はパテイオ周囲の三つの広々とした空間を含みますが、新しい生活様式に合うようにその用途を再構成しました。

玄関から家の中央スペースへと導きます。パティオを通って、リビングルームとプレイルームへと続く対のドアによって強調されるほぼ対称的な間取りに家は分割されています。これらのドアの一つは機能的には必要ないのですが、雰囲気のある意思表示として保存しました。横に並んだ主な部屋は、住まいの共有エリア、リビングルーム、ダイニングルームとキッチンで構成されています。

それらの部屋は単一の空間としてありますが、天井の処理によって違いが認識できるようにしてあります。リビングルームの既存の複雑なボザール風天井は修復され、綺麗になっています。しかし静的で古典的な天井はダイニングスペースに加えられ、最後にモダンな逆継ぎ目がキッチンに取り入れられました。このスペースを通じて進歩的な変化を作り出しています。

ダイニングスペースとキッチンが統合するように部屋の方向性と平行にキッチン機能を置くことによって強調されます。逆側の空間構成には小さなベッドルームと浴室、場所を移動した階段が設けられ、中央ホール及び通り側に面したプレイルームと間接的に繋がっています。全ての木のフローリングは保存および修復がされ、中央ホールのタイルは古くひびが入っていたので剥がして新しいものを張りました。

全ての既存の状態のいいドアも保存され、居住様式に沿って移動させました。新しい室内階段によってアクセスできる半階フロアには新しい浴室の付いたもう一つのベッドルームがあります。二階に移動すると、完全に新しい増築部分があります。一つはパティオとテラスに向かって、もう一つは通りに向かう二つの大きなガラス窓によってこの増築部分は外観とのつながりを強調するように建てられました。

この新しい増築部分には主寝室と小道を眺められるメインの浴室、そしてテラスとつながった家族用のスタジオが設けられています。新しいボリューム全体として解釈され、直射日光の直撃は避けるように切り取られた形態をしていますが心地よい自然光を受けるように配置されています。この切り取りはパティオを見下ろす屋根付きテラスと通りに向かって伸びる庇の機能を持っています。
クリックしてイメージ拡大
新しいボリュームはこの介入(増築)において全ての形式的な特徴を凝縮し、既存部分との対話関係を創造します。この増築は現代的なアイデンティティを失わずに古典的な外観の上階部分として機能することを意図しています。既存の色彩、ハートパインフローリング、杉、黒く塗られたスチールの窓およびドア枠、白く漆喰塗りされた壁などを参考しにして材料は決定されました。
クリックしてイメージ拡大
この(材料の)反復は建物全体を繊細に統合します。介入の目的は先に存在する組み立てられた枠組みに現代の生活様式のプログラムを収めることであり、新しいものと古いものの間に起こる静かな対話関係をもたらすことにあります。
クリックしてイメージ拡大
プロジェクトの種類;修復および増築
建築事務所:Estudio BaBO
チーム:Marit Stabell、Francisco Kocourek、Francesc Planas Penadés
建設業者:Hugo Borda Construcciones
クリックしてイメージ拡大
敷地:パレルモ(アルゼンチン、ブエノスアイレス市)
総面積:185m2
設計期間:2007年
工事期間:2007〜2008年
写真: Estudio BaBO
.
![]() |
![]() |
![]() |
| 31 Blair Road by ONG&ONG |
House in Midorigaoka by Yusuke Fujita | More architecture stories on Dezeen |









コメントする