

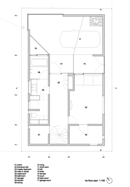
外壁を対角線に切り取ったことによって庭とテラスに日光を取り込むことができ、居住者のプライバシーも確保されている。

Wrap Houseと名付けられたこの家は木造で、黒色に亜鉛メッキされた鋼板に被覆されている。

二階のリビングルームの一面はガラス壁でリビングをテラスと下階の庭から隔てている。

写真:ナカサアンドパートナーズ、ヤノトシユキ
建築家からの説明は以下の通り:
-
WRAP HOUSE
2009年、広島
『WRAP HOUSE』は豊かな居住空間をつくるために日光、広々とした感覚、プライバシーの3つの要素を分類して、包み込んでいます。この敷地は広島市の南西にある平坦な住居地区に位置します。

敷地は四方を住宅に囲まれていてそのひとつは敷地境界線ぎりぎりに接しているので、以下のような建築的な調整が必要となりました。

厳しい敷地制限にも関わらず、プライバシーを保ちながら明るく広々とした空間をつくるために、容積率の許容範囲を尊重しつつ北側に「ヴォイド」を設け、敷地いっぱいを壁が包み込んでいます。

北側道路にガレージが面しているので、自ずとそれに隣接したテラスによってリビングスペースは北側に延長されます。

加えて、西側の隣の家への日照を考慮して勾配屋根が採用され、東側には「ヴォイド」を囲むV形の壁が設けられました。

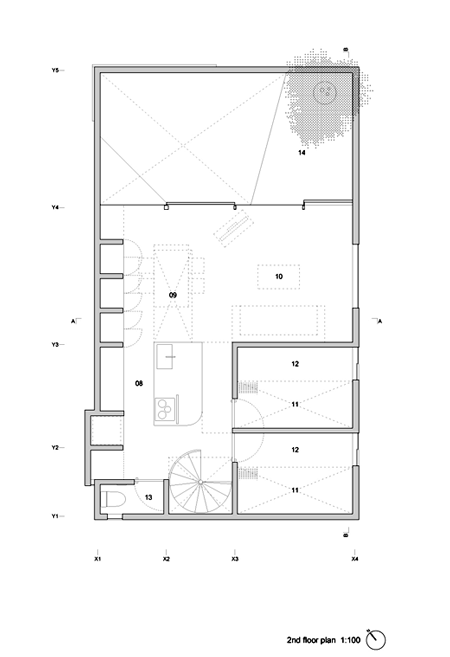
その結果、朝はヴォイドに光が差し込み、「光井戸」が生まれます。

集まった日の光は白壁に反射し、部屋をやさしく照らします。早朝には光が東側からヴォイドに入ってきます。

さらに日が昇ると上部の窓を通して差し込み、日が沈み始めると天窓を通して光が落ちてきます。

したがって、日の出から日没まで光の入り方が常に変化するので、空間も時間の流れによって変化します。

夜になると、周囲の風景が見えなくなると同時に対角線に切り取られた壁が浮かび上がります。昼間とは異なる空間が現れるのです。

取り囲む壁は周囲から居住空間のプライバシーを守りながら広々とした印象を作り出すと同時に、外部のヴォイド空間は内部空間の延長と認識されます。

一階のバスルームから空を見上げることができ、主寝室からは車を見渡せます。

住宅と車の入り口は両方とも北側道路に面しており、壁の一部のように設けられ、ヴォイド空間へアクセスできるように開閉することができます。

対角線の壁によって縁取られた空は上方へ延びていき、6mの高さのトネリコの木は二階のテラスを貫通しています。

この北側の緩衡ゾーンは法的には建築面積に含まれていませんが、敷地の可能性を最大限に生かす役割を果たしています。

北面ヴォイドをもつ『WRAP HOUSE』は法規制限から生じた新しい建築スタイルを提案しています。
Dezeenオリジナル(英語)はこちら。

コメントする