
ロンドンのマークス・バーフィールド・アーキテクツが、ボタンひとつでタワーの中のセクションが上昇する家をデザインした。
ロンドンのマークス・バーフィールド・アーキテクツが、ボタンひとつでタワーの一部分が上昇する家をデザインした。

ヴィラ・ハッシュ・ハッシュと呼ばれるこの建物は、長方形の4ゾーンに分けられ、そのうち二つのゾーンを空中高く上昇させることができる。

このプロジェクトは住人が気分次第で「木々に囲まれてのプライバシー」か「景観の眺め」かを選択できるようデザインされている。

エンジニア事務所アトリエ・ワンがデザインしたメカニズムは、支柱を地上から押し上げ、建物の一部を40メートルも上昇させる。

マークス・バーフィールド・アーキテクツに関する他のDezeen記事は、Kew Tree Top Walkways (May 2008)をどうぞ。

以下、建築事務所からのメッセージ。
-
ヴィラ・ハッシュ・ハッシュは、Dezeenだけに明かされた、ロンドン・アイの建築家マークス・バーフィールド氏による途方もない最新の提案です。

周りに反応する場所として、また驚くべき眺めを提供するよう特注されたヴィラ・ハッシュ・ハッシュは、景観の中に消失する豪華な新居というコンセプトの元にデザインされています。ボタンひとつ押せば木の上にまで伸びててゆき、素晴らしい眺めを提供してくれます。

アソシエート・ディレクターでプロジェクト・アーキテクトのスティブン・チルトン氏が、Dezeenだけに語ったところによると、「各々を手作業で仕上げた美しい家を造るという魅力的な内容に、インスピレーションを得ました。

デザインは、ドナルド・ジュッドの作品からヒントを得た単純な立法構成に由来しています。デザインと機能面で類を見ない、世界にふたつとないこの家は、忘れられない、感動的で生きた経験を与えてくれるでしょう」。

計画では、ヴィラは4つの明確に定義されたゾーンごとに区分し、内部配置やクライアントの要求によって、そのうちふたつのゾーンを上へと伸ばすことができます。

クリーンなシンプルさを持った建物の形は、ヴィラ、見物人、そして環境の関係性を凝縮しています。

外からの眺めですが、荘厳な雰囲気を持つヴィラはこの動く部分のおかげで、ユニークな光景を作り出す「動く彫刻」へと変身します。

建物内部では、内装スペシャリストのキャンディ&キャンディによる特注デザインによって、ヴィラの一部が上に伸びて地平線が見えることで、素晴らしい眺めがゆっくりと現れます。類を見ない、思い出に残る、そして感情の高揚をつくり出してくれます。

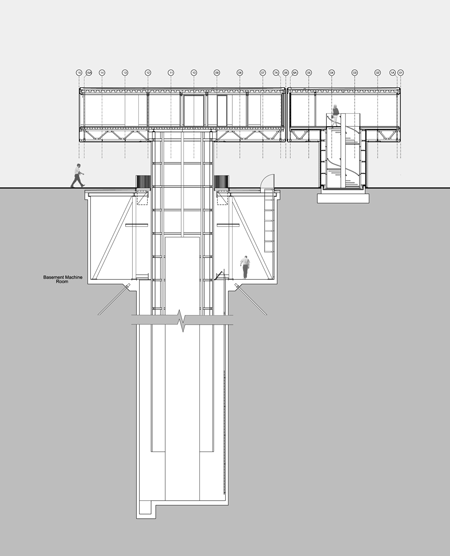
エンジニアのアトリエ・ワンは、ヴィラの可動部分を一番低い位置から必要な高さにまで上げて、支柱を地上から上に押し上げるメカニズムをデザインしました。

上昇のメカニズムは、1秒あたり大体10センチのスピードで、ゆるやかに安定して上昇するデザインされています。このストラクチャーは上昇より下降が楽なため、ヴィラの可動部分はもっと早く下がることができます。つまり、地上から最高の高さに上がるには約5分間、降りるには約3分間を要します。

ヴィラの支柱と可動部分は、枠台に吊り下げられ押さえとして機能する260トンのスチール・プレートによって均衡を保ち、中央内部のスチール・チューブ構造内で導かれ、エネルギー効率の良いセダン車に匹敵する22キロワットの駆動モーター8基によって可動します。
大きな画像はこちらをクリック
ひとつの運転ユニットが駄目になっても、パフォーマンスが落ちることなくメカニズムが正常に機能するよう、モーターとギアボックスのシステムには代理機能性が組み込まれています。

動力学のスペシャリスト「モーショニング」との共同作業により、最高レベルでの快適性を確保するため、様々な高さにおける構造の動的応対と風速を制限するダンパーが構造内に設計されています。

構造の経済性を最大限にするために、この構造は強風の際には上昇作動を控えます。その強風制限はビューフォート風力階級7で、これは木全体が揺れていて風の中を歩くのが大変という状況です。こうしたケースでは、ヴィラの可動部分は低位置で快適性を保ちます。
翻訳者/ ハートフル・ジャパン 武田浩美
Dezeen記事(オリジナル)はこちら。


コメントする