
シンガポールのデザイン事務所Ministry of Designが現地に建設したオフィスビルは、建物内外の天井や壁に落書きをしたように描かれた白い光の帯が特徴だ。

Face to Faceと呼ばれるこの建物は、オフィス、会議室、そして談話室で構成されている。

受付の机に代わり来訪者を迎えるのは、長さ10メートルの表面が硬いカウンターだ。

黒い壁は、動物、人、樹木の白いシルエットで装飾されている。

DezeenのMinistry of Designに関する記事はこちら。
Leo Burnett Office, featuring a drawing of the company's founder spread across the walls and floor (October 2009)
Ministry of Designからの説明は以下の通り。
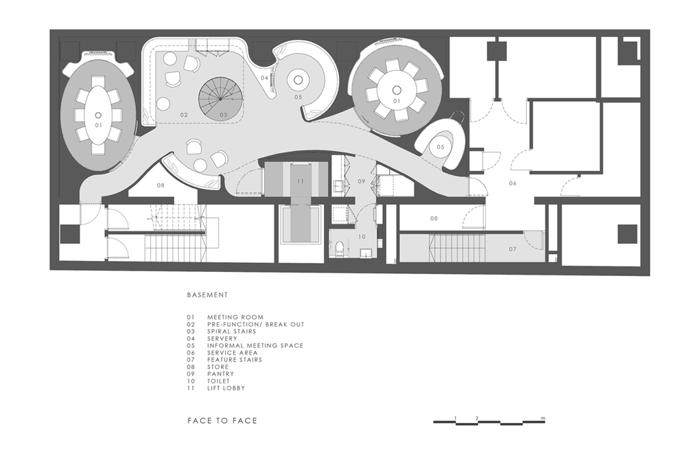
地元のオフィス・プロバイダーであるFace to Faceの建物は、建築やインテリア、さらに独自のブランドを幅広く体感できるよう設計されています。ラッフルズ・シティーとラッフルズ・プレイス中間の繁華街に位置するこのプロジェクトは、近年需要が高まっている、より生活に密着した職場環境を意識したオフィスや会議室の提供を目的としています。

問題点
我々はこの企画の遂行に際して、根本的な疑問を投げかけることから始めました。まず、他のオフィス・プロバイダーが提供している、従来の洗練された、近代的で、職業的なイメージや体験とは対照的な、独特で多様性に富んだ個性的建築の創造を依頼主のために模索し始めたのです。我々がまた関心を持ったのは、受付と来訪者、そして貸す側と借りる側の間に生じる関係や体験であり、さらに典型的なオフィスの人が集うスペースには特色がなく、打ち解けた(偶発的な)集会の場が欠けていることです。

抜本的改革
既成の概念を覆すことで、我々はいくつかの中核となる場所を根本的に変えることに着手しました。手始めに、受付のテーブルを食堂用のカウンターに代えることで、人が集い楽しむ場としての受付という特色を前面に出しました。ここでは、長さ10メートルの硬い表面をした美しいテーブルが、ビジネスとしての機能だけでなく、日常的な交流や活動を促す役目を果たしています。

次に我々が取り組んだのは、周囲の壁全体に躍動感を持たせることで、中心となる共有スペースの雰囲気や機能を、季節の移り変わりを感じさせるようなデザインにすることでした。黒で統一した壁に明るい照明と、反射したり、抑えたりする様々な表面を組み合わせることで、より生活中心の躍動感溢れる独特なオフィス環境が生まれます。壁に描かれた人や動物のシルエットによって、受付や食堂、そして会議室に一風変わった遊び心の感覚が生まれ、非常階段を見るだけでも、初めて訪れる人やテナントを問わず、豊かなイメージを体感できるのです。このような特色は、典型的なオフィス空間に対する画一的な認識や体験を、払拭する手助けにもなっているのです。
そして最後に、テナントの日常的な活動である、郵便物の受け取りや簡単な会議、二階の大食堂前でのゆったりとした時間を演出することで、テナントと人を重視したFace to Faceのオフィスの間に深いつながりが生まれことを目指しています。
新たな試み
新たな試みとして、Face to Faceは従来の職業的な受付係りに代わり、コンシエルジュとテナント専属のスタッフを導入します。それによって人との出会いが親密で幅広くなり、仕事や生活面で従来とは異なる独特なイメージを印象付けるオフィス環境が生まれます。
投稿/クリス・バーンズ
翻訳/ハートフル・ジャパン 鳴海 亨
Dezeen記事(オリジナル)はこちら。




コメントする