
サークル・バスと名付けられた今回の作品では、そのデザインは病院というよりも、高級ホテルを思わせる。

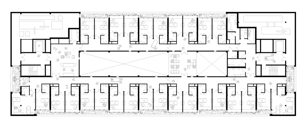
三階建ての今回の作品は、手術室のある中央の大広間を囲む様に配置されており、プライベート・ガーデンを望む回復室もある。

植物が植えられた庭を望むバルコニーが2階の正面にあり、2階は患者のベッドルームになっている。

以下は、フォスター+パートナーズからのコメントの抜粋である。
-
フォスター+パートナーズが手掛けた最初の病院となるサークル・バス
サークル・バスは、私達が手掛けた最初の病院で、従来のオーソドックスな病院計画からの抜本的な改革となる、新しい、独立した病院で、2月に開院予定です。

コンパクトなデザインが病院をコンパクトな印象を与え、従来の病院とは異なり、高級感漂う一流ホテルのような居心地の良い施設となりました。

三階建てのこの病院は、バス地方の南東に広がる9Kmものグリーン・ベルトの端の丘の上に建設しました。病院中央のライトを中心に設計をして、位置とくつろげる雰囲気を大切に出来る空間作りを心がけました。それは、従来の大型の病院では掛けていた部分だったのです。

一階の正面玄関は、北側から直接大広間へと伸びる道路から入れます。北側正面は、ダーク・カラーの鏡板を下の部分に使用し、南側のおおきな窓ガラスからは、病院の取り囲む田園風景を楽しめます。

まるで幅木の上を飛んでいるかの様に、28個の全てのベッドルームを取り囲む、上部の立体感と長方形の屋根がアルミ製の屋根板で覆われています。

天井が2倍の高さの中央大広間は、患者やスタッフに、見舞客らの注目を集めます。そこからは一階の診察等を行うプライベート・コンサルテーション・ルームや、広場の上に設置された患者専用のベッドルームへとつながっています。

メインのレセプション・ポイントとなるカフェやナース・ステーションが広場の中心に位置し、半透明のリボンによって朝日や夕日等の自然光が和らげられている。その色彩は、暖かくて親しみやすい黄土色と赤褐色のミックス。その上には天然の防音の木製パネル使われ、ガラス・パネルの間に点在しているのです。そうすることで、ベッドルームからの大広間との視覚的繋がりを生んでいるのです。
クリックで、拡大イメージ
ビル全体を通して、自然光の景観に注意を払いました。手術室と回復室の南向きの窓はすべてガラス窓にして、プライベート・ガーデンを見下ろせる様にしてあります。2階のベッドルームはバルコニーから見下ろす事出来る様にしてあり、周囲にはハーブや低木を植えました。そうすることで、ビルの周囲を最高の田園風景で取り囲む事ができました。従来の病院とは全く異なった雰囲気を作り出すため、心地よい庭園作りには、癒しの力を本来持つ自然の風景に仕上げました。
クリックで拡大イメージ
医局の垣根を最小限にすることで、診察や治療に関わる患者のストレスを緩和したり、手術からの回復を早めたり、さらにはそこで働くスタッフの歩く距離を削減しることにもつながります。
クリックで、拡大イメージ
フォスター+パートナーズ社長であるスペンサー・デ・グレイからのコメント。よく考えられた病院では、患者の回復時間が短くなったり、いい結果がでているとの沢山の報告があります。さらには、この病院ではそこで働くスタッフに魅力的な職場を提供してもいるのです。この病院は我々フォスター+パートナーが初めて手掛ける病院で、そのデザインは民主的で全ての中心に患者がいます。そして、最高の立地を利用して、自然の光と風景が楽しめる、居心地の良い空間になっています。
クリックで拡大イメージ
サークル・バス
施工主 サークル・ヘルス・プロパティーズ・マネージメント・Ltd
プログラム 2006−2009
サイト・エリア 10,103㎡
ビルディング・エリア 6,400㎡
全長 13,2m
駐車場スペース 身体障害者用2台を含む、155台
外来患者用診察室 9室
入院患者用ベッドルーム シングル26部屋、ツイン/家族用 2部屋
手術室 4室
設置予定機材 MRI, CT-スキャン、X線、超音波
建設予定費用 2100万ポンド
建築構造 コンクリート、厚板
建材 レンガ-下層階部分、ガラス/レインスクリーン、パネル・システム-一階部分
光沢面 アルミニウム
チーム
スペンサー・デ・グレイ、ポール・カルコーヴェン、ダロン・ヘイロック、
ハンス-クリスチャン・ヴィルヘルム、イングリッド・シューケン・パリテシュ・パテル
クライアント サークル・ヘルス・プロパティーズ・マネージメント・Ltd
プロジェクト・マネージャー ブロ・フォー
構造マネージャー WSPカンター・サイヌク
サービス・エンジニア アルプ
造園建築 プリンク・ランドスケープ
コスト・コンサルタント デイヴィス・ランドン・LLP
医療機器プランナー CSJ プランニング
交通コンサルタント IMA トランスポート・プランニング
施工業者 テイラー・ウッドロー・コンストラクション(VINCIの一部)





コメントする