
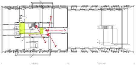
Annaと呼ばれるこのデザインには、白と黒のワイヤーフレーム(点と線だけで表した三次元画像)を使って、廊下を囲む壁の内側にある実際の部屋と想像上の部屋をイメージしたものもある。


このプロジェクトは、インタラクティブメディア会社iart interactiveのオフィス用に委託されたものである。

関連記事: V&A washrooms by Glowacka Rennie (April 2009)
ZMIKに関する情報は Coming Out exhibition (March 2009)


ZMIKからの情報は以下の通り。
2009年バーゼルiart interactive 社向けの空間デザインANNA
iart interactive社は、1970年代に建てられたビルの新たな場所にオフィスを移動します。人が頻繁に移動する場所に歪像描法を用いた空間デザインを施すことで、狭い廊下が広く見えます。ワイヤーフレームによって描かれた壁の内側にある現実と想像上の部屋は、定められた5つの場所からのみ識別することができます。これ以外の場所から見ると、ワイヤーフレームは漠然とした直線と化してしまうのです。このようなデザインはまた、新しい未来像を求める iart社に相応しいものと言えます。

デザイン:ZMIK
依頼主:バーゼル、iart interactive ag
完成:2009年9月
写真:Eik Frenzel
投稿/ローズ・エサリントン
翻訳:ハートフル・ジャパン 鳴海 亨
Dezeen記事(オリジナル)はこちら。


コメントする